Description
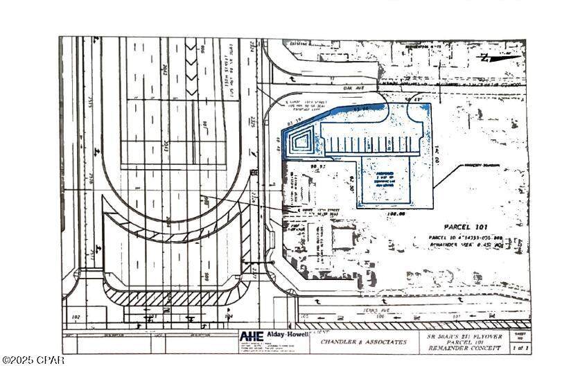
Prime Commercial Corner Lot - Oak St & 15th St, Panama City, FL Property Overview: This highly visible commercial property is positioned at the corner of Oak Street and 15th Street (SR 30A/US 231 Flyover exit), offering 177 feet of frontage on Oak Street with direct visibility from 15th Street, a high-traffic corridor in Panama City, FL. Located at a strategic intersection, this site presents an unparalleled opportunity for commercial development, retail, office space, or investment. Key Highlights: ✅ Highway Visibility: Directly visible from 15th Street (SR 30A) and situated on the new US 231 Flyover exit, ensuring consistent exposure to local and through traffic. ✅ Corner Location: Maximum accessibility with ingress/egress options on Oak St. and potential cross-access points. ✅ 177 Feet of Frontage: Prime commercial exposure on Oak Street, ideal for signage and visibility. ✅ High Traffic Counts: 15th Street serves as a key commercial artery, with strong commuter and tourist traffic. ✅ Zoning & Use Potential: Suitable for retail, office space, fast food/QSR, medical, or mixed-use development. Location Advantages: 📍 Positioned in a growing commercial hub with easy access to Downtown Panama City, Callaway, and Lynn Haven. 📍 Minutes from major retail centers, government offices, and business districts. 📍 Direct connectivity to US Highway 231, a major north-south corridor linking Panama City to I-10 and beyond. Development Potential: This site offers excellent potential for single or multi-tenant commercial development, drive-thru businesses, professional services, or investment opportunities. The surrounding infrastructure improvements, including the new flyover and expansion projects, make this a prime time to secure a spot in one of Panama City's emerging commercial hotspots.
-
0BEDS
-
0.58ACRES
-
0BATHS
-
01/2 BATHS
School Information
Description
Prime Commercial Corner Lot - Oak St & 15th St, Panama City, FL Property Overview: This highly visible commercial property is positioned at the corner of Oak Street and 15th Street (SR 30A/US 231 Flyover exit), offering 177 feet of frontage on Oak Street with direct visibility from 15th Street, a high-traffic corridor in Panama City, FL. Located at a strategic intersection, this site presents an unparalleled opportunity for commercial development, retail, office space, or investment. Key Highlights: ✅ Highway Visibility: Directly visible from 15th Street (SR 30A) and situated on the new US 231 Flyover exit, ensuring consistent exposure to local and through traffic. ✅ Corner Location: Maximum accessibility with ingress/egress options on Oak St. and potential cross-access points. ✅ 177 Feet of Frontage: Prime commercial exposure on Oak Street, ideal for signage and visibility. ✅ High Traffic Counts: 15th Street serves as a key commercial artery, with strong commuter and tourist traffic. ✅ Zoning & Use Potential: Suitable for retail, office space, fast food/QSR, medical, or mixed-use development. Location Advantages: 📍 Positioned in a growing commercial hub with easy access to Downtown Panama City, Callaway, and Lynn Haven. 📍 Minutes from major retail centers, government offices, and business districts. 📍 Direct connectivity to US Highway 231, a major north-south corridor linking Panama City to I-10 and beyond. Development Potential: This site offers excellent potential for single or multi-tenant commercial development, drive-thru businesses, professional services, or investment opportunities. The surrounding infrastructure improvements, including the new flyover and expansion projects, make this a prime time to secure a spot in one of Panama City's emerging commercial hotspots.
Related Properties
© 2025 Central Panhandle Association of Realtors MLS. All rights reserved. IDX information is provided exclusively for consumers' personal, non-commercial use and may not be used for any purpose other than to identify prospective properties consumers may be interested in purchasing. Information is deemed reliable but is not guaranteed accurate by the MLS or Abbott Martin Group | eXp Realty. Data last updated: 2025-11-13T12:04:05.933.

Listing provided courtesy of Counts Real Estate Group Inc: 850-249-1414. Listing information © 2025 Central Panhandle Association of Realtors MLS.